リビングダイニングの贅沢な吹き抜けが魅力的!
見学できます! お気軽にお問い合わせください TEL 0577-32-0009
|
所在地
岐阜県高山市久々野町無数河1501番1 他15筆 |
価格
価格 910万円 |
物件種目
中古一戸建て
|
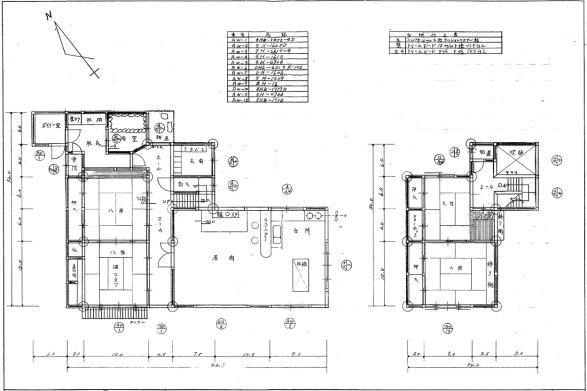
@建物面積 居宅
登記簿 205.19u(62.07坪) |
@築年月
昭和57年7月 |
@間取り
5LDK |
A建物面積 付属建物
登記簿 51.19u(15.48坪) |
A築年月
昭和59年11月 |
A間取り
|
@構造
木造瓦亜鉛メッキ鋼板葺き2階建 |
A構造
木造亜鉛メッキ鋼板葺き平屋建 |
土地面積
2,614.61u(790.92坪) |
地目
宅地・原野・田・畑 |
 |
交通
・ JR高山本線 久々野駅まで2km ・のらマイカー 中組小瀬川前バス停から350m |
建ぺい率
60% |
容積率
200% |
接道
北側公道にに接道 |
面積計測方式
登記簿 |
用途地域
無指定地域 |
権利種類
所有権 |
現況/引渡
空家/相談 |
小学校
久々野小まで 徒歩27分 |
中学校
久々野中まで 徒歩38分 |
取引形態
仲介 |
|
設備
市営上下水道、電気、プロパンガス |
備考
・ |
地図→  |
【周辺施設】 市立久々野小学校 2km/市立久々野中学校 2.7km/ローソン 1.5km/久々野郵便局 1.6km/久々野拠点診療所 1.6km/ゲンキー
2.5km/久々野総合運動公園 2.6km/道の駅なぎさ 7.9km/ファミリーストアさとう石浦店 10.8km/ |
 |
|